Carolieweg 33

9671 AD Winschoten

50 m2 2

760

Deel dit object:

  Omschrijving

Om sneller in aanmerking te kunnen komen voor een huurwoning, willen wij je adviseren een inschrijving te doen via Domeq.

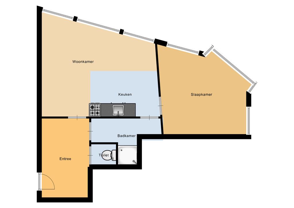
In het centrum van Winschoten en op loopafstand van alle voorzieningen prachtig hoekappartement. Het appartement heeft veel lichtinval en een mooi uitzicht over de Torenstraat. Tevens heeft u een eigen berging in het souterrain.

Indeling: entree/ hal, toilet, moderne keuken v.v. kookplaat, afzuigkap, combi magnetron en koelkast, woonkamer, 1 slaapkamer, badkamer v.v. douche en wastafel.

Extra:
* gelegen in het centrum van Winschoten
* eigen en afgesloten entree
* eigen berging
* huurtoeslag mogelijk

Huurvoorwaarden
* borg 1 maandhuur
* huurperiode onbepaalde tijd
* servicekosten: €35,00 per maand
* stookkosten: €185,00 per maand

  Kenmerken

Overdracht

Status:
Beschikbaar
Aanvaarding:
in overleg

Bouwvorm

Bouwjaar:
vanaf 1906 tm 1930
Bouwvorm:
bestaande bouw

Indeling

Woonoppervlakte:
50 m2
Inhoud:
200 m3
Aantal kamers:
2
Aantal slaapkamers:
1
Aantal woonlagen:
1

Energie

Bouwjaar:
2011
Warmwater:
elektrische boiler eigendom

Buitenruimte

Tuin:
geen tuin: ,

Bergruimte

Schuur / Berging:
inpandig

Voorzieningen

Soort:
mechanische ventilatie
Energie Label:
B

  Kaart

 Foto's