Carolieweg 5

9671 AD Winschoten

39 m2 2

750

Deel dit object:

  Omschrijving

Om sneller in aanmerking te kunnen komen voor een woning zouden wij u willen adviseren een inschrijving te doen op onze website.

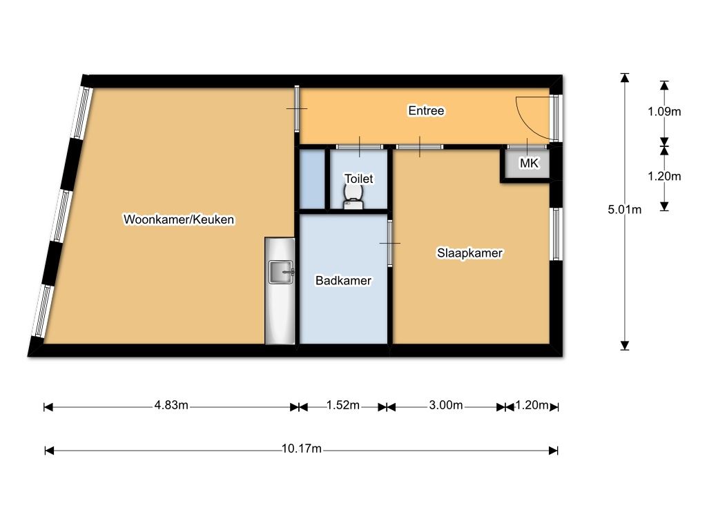
In hartje centrum van Winschoten en op loopafstand van alle voorzieningen appartement op de 1e verdieping met eigen berging in het souterrain.

Indeling: entree/hal, toilet, moderne keuken v.v. koelkast, combi magnetron, afzuigkap en elektrische kookplaat, woonkamer, slaapkamer, badkamer v.v. douche en wastafel.

Extra:
* Gelegen in het centrum van Winschoten
* Eigen en afgesloten entree
* Eigen berging

Huurvoorwaarden
* Borg 1 maandhuur
* Voorschot stookkosten €185,00 p/mnd
* Servicekosten €33,50 p/mnd

  Kenmerken

Overdracht

Status:
Beschikbaar
Aanvaarding:
in overleg

Bouwvorm

Bouwjaar:
vanaf 2011 tm 2020
Bouwvorm:
bestaande bouw

Indeling

Woonoppervlakte:
39 m2
Inhoud:
120 m3
Aantal kamers:
2
Aantal slaapkamers:
1
Aantal woonlagen:
1

Energie

Bouwjaar:
2011
Warmwater:
elektrische boiler eigendom

Buitenruimte

Tuin:
geen tuin: ,

Bergruimte

Schuur / Berging:
inpandig

Voorzieningen

Soort:
mechanische ventilatie
Energie Label:
A_P

  Kaart