Kloekhorststraat 16 D

9401 BD Assen

37 m2 2

615

Deel dit object:

  Omschrijving

Om sneller in aanmerking te kunnen komen voor een huurwoning, willen wij je adviseren een inschrijving te doen via Domeq.

Het appartement is gesitueerd op de tweede verdieping en is gelegen op steenworp afstand van het centrum van Assen. In de buurt bevinden zich tal van voorzieningen, zoals het NS-station, supermarkt en een grote diversiteit aan winkels.

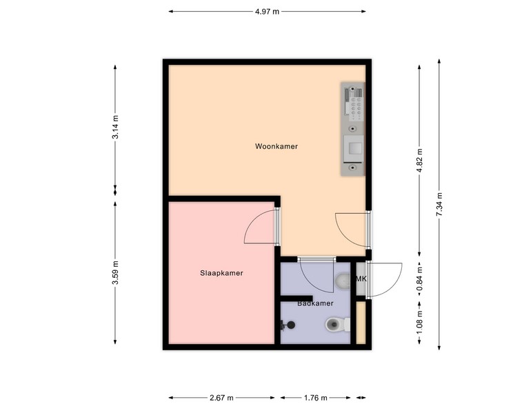
Indeling: entree, woonkamer met open keuken voorzien van koelkast, magnetron, kookplaat en afzuigkap, slaapkamer en badkamer met douche, toilet en wastafel.

Extra:
* Midden in het centrum gelegen
* Tal van voorzieningen op loopafstand
* Eigen berging

Huurvoorwaarden:
* Borg 1 maandhuur
* Servicekosten €36,50 p.m.
* Voorschot gas/water/elektra €165,00 p.m.
* Minimale huurperiode 12 maanden daarna voor onbepaalde tijd

N.B. Let op: De indeling van de woning is gespiegeld ten opzichte van wat op de foto's zichtbaar is.

  Kenmerken

Overdracht

Status:
Verhuurd onder voorbehoud
Aanvaarding:
in overleg

Bouwvorm

Bouwjaar:
vanaf 1971 tm 1980
Bouwvorm:
bestaande bouw

Indeling

Woonoppervlakte:
37 m2
Inhoud:
90 m3
Aantal kamers:
2
Aantal slaapkamers:
1
Aantal woonlagen:
1

Energie

Warmwater:
elektrische boiler eigendom

Buitenruimte

Tuin:
geen tuin: ,

Bergruimte

Schuur / Berging:
inpandig

Voorzieningen

Soort:
Energie Label:
D

  Kaart